Сорренто

Материал: Клееный брус
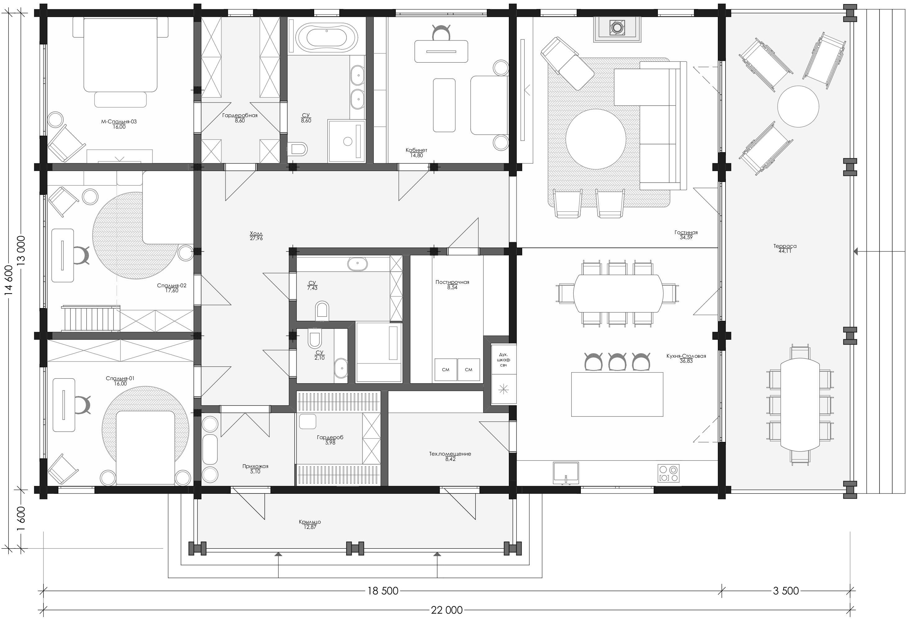
Площадь: 308 м2
Габариты: 14.6x22 м
Потолок на 1 этаже: 2.6-4.9 м
Потолок на 2 этаже: 1.3-2.1 м

Обзор похожего дома:

Особенности проекта:

  • Дом из клееного бруса
  • Двухэтажный
  • Второй свет
  • 3 и более спален
  • Гараж
  • Крыльцо
  • Терраса
 Скачать проект в PDF

В комплектацию "тепловой контур" входит:

  • Доставка, разгрузка, сборка дома на Вашем участке.
  • Привязка и разметка фундамента на участке
  • Железобетонные забивные сваи сечением 20x20 см длиной 3 метра из бетона высшего качества
  • Домокомплект из клееного бруса 200x185 мм.
  • Антисептирование бруса, обработка торцов воском
  • Доставка домокомплекта и всех материалов
  • Сборка домокомплекта на герметик
  • Гидроизоляция фундамента
  • Устройство лесов
  • Устройство обвязочного бруса на фундамент
  • Врезка балок пола 1 этажа
  • Устройство межэтажных балок
  • Все расходные материалы для сборки
  • Устройство стропильной системы
  • Капитальная кровля (утепление 20 см, пароизоляция, гидроизоляция, обрешетка и контробрешетка) с покрытием натуральной черепицей BRAAS
  • Утепление кровли 20 см, качественные паро- и гидромембраны
  • Деревянные окна и входные двери (евробрус трехламельный 78, стеклопакет трехслойный 40 мм) с подготовкой проемов и монтажом
  • Проживание рабочей бригады
  • Электрогенератор (если нет электричества)
  • Уборка площадки по окончанию работ
  • Постоянный контроль (регулярные выезды технадзора на объект)
  Получить полное коммерческое предложение   Получить полное КП

Есть вопросы? Мы всегда готовы помочь!

Команда Голден Лог
Алексей Гавриленко
Главный Архитектор, Руководитель
Команда Голден Лог
Евгений Савичев
Технический Директор
Команда Голден Лог
Анна Дзидзава
Архитектор
Команда Голден Лог
Владимир Сазонов
Инженер

Если у вас возникли какие-либо вопросы по нашим проектам, технологиям и ценам, звоните по телефону +7 (495) 160-19-86 или пишите на info@goldenlog.ru. Постараемся максимально полно и оперативно ответить на все ваши вопросы!

 Задать вопрос в WhatsApp  Написать в WhatsApp

Ваши преимущества при заказе дома в Голден Лог:

  1. Высочайшее качество по адекватным ценам!
    Для производства бревен и клееного бруса используется только северный лес высшего качества, исключительно из Архангельской области, обработанный на собственном производстве на границе Архангельской и Кировской областей.
  2. Значительная экономия вашего бюджета!
    Все проекты оптимизированы под производство, отходов практически нет.
  3. Чистота и порядок на вашем участке.
    Наши рабочие работают на постоянной основе, а на строительных объектах у нас действует "сухой закон".
  4. Скидки и акции в Голден Лог - реальные.
    Мы не закладываем скидки в изначальную цену.
  5. Максимальная честность и прозрачность.
    Понятные сметы, которые не растут в процессе стройки, нет «подводных камней»
  6. Скидки на отделочные и строительные материалы.
    Мы являемся дилерами всей продукции, которую мы используем (кроме того, что производим сами), работаем только с надежными партнерами.
  7. Вы не платите за раздутый штат непроизводственного персонала и аренду огромных офисов.
    У нас нет большого штата менеджеров, представителей, консультантов, продавцов – Вы общаетесь сразу с профессионалами.
  8. Актуальные, рыночные цены.
    Мы регулярно изучаем предложения на рынке и предлагаем лучшую цену.
  9. Возможно, лучшее соотношение цена/качество на строительном рынке Москвы и Московской области.
    У нас огромный опыт в строительстве и мы знаем, как не тратить лишних денег Заказчика.
  10. Гарантия на все виды работ.
    Работаем только по договору и даем официальную гарантию на наши работы и материалы в соответствии с законодательством РФ.

Отзывы о нашей работе (только живые отзывы):

Похожие проекты:

 Смотреть все проекты
-->