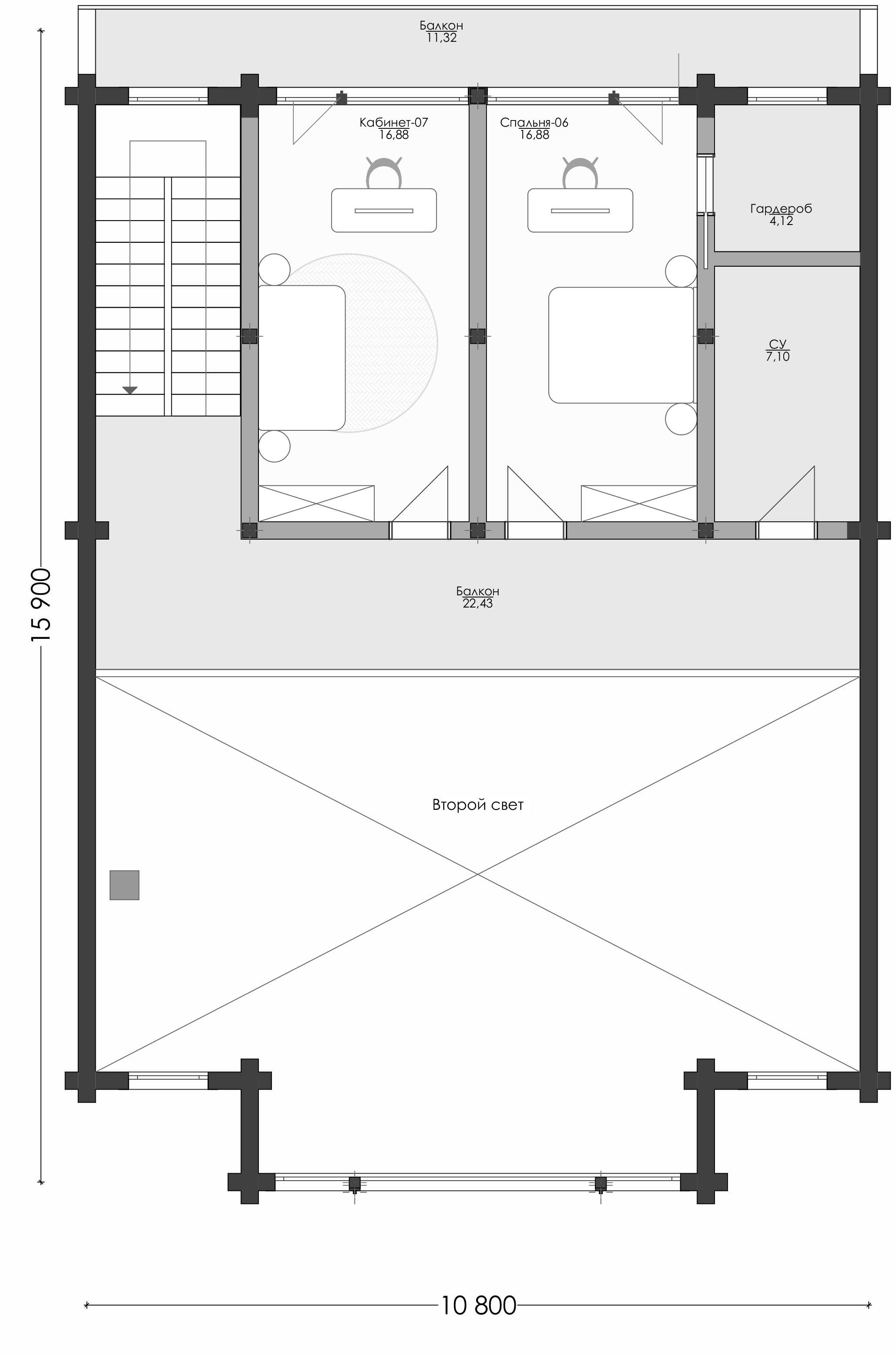
Изображения носят иллюстративный характер.
95% клиентов изменяют планировочные решения под свои потребности.
95% клиентов изменяют планировочные решения под свои потребности.


Особенности проекта:
- Дом из клееного бруса
- Двухэтажный
- Второй свет
- 3 и более спален
- Балкон(ы)
- Гараж
- Крыльцо
- Терраса
В комплектацию "тепловой контур" входит:
- Доставка, разгрузка, сборка дома на Вашем участке.
- Привязка и разметка фундамента на участке
- Железобетонные забивные сваи сечением 20x20 см длиной 3 метра из бетона высшего качества
- Домокомплект из клееного бруса 200x185 мм.
- Антисептирование бруса, обработка торцов воском
- Доставка домокомплекта и всех материалов
- Сборка домокомплекта на герметик
- Гидроизоляция фундамента
- Устройство лесов
- Устройство обвязочного бруса на фундамент
- Врезка балок пола 1 этажа
- Устройство межэтажных балок
- Все расходные материалы для сборки
- Устройство стропильной системы
- Капитальная кровля (утепление 20 см, пароизоляция, гидроизоляция, обрешетка и контробрешетка) с покрытием натуральной черепицей BRAAS
- Утепление кровли 20 см, качественные паро- и гидромембраны
- Деревянные окна и входные двери (евробрус трехламельный 78, стеклопакет трехслойный 40 мм) с подготовкой проемов и монтажом
- Проживание рабочей бригады
- Электрогенератор (если нет электричества)
- Уборка площадки по окончанию работ
- Постоянный контроль (регулярные выезды технадзора на объект)
Есть вопросы? Мы всегда готовы помочь!

Главный Архитектор, Руководитель

Технический Директор

Архитектор

Инженер
Если у вас возникли какие-либо вопросы по нашим проектам, технологиям и ценам, звоните по телефону +7 (495) 160-19-86 или пишите на info@goldenlog.ru. Постараемся максимально полно и оперативно ответить на все ваши вопросы!
Задать вопрос в WhatsApp Написать в WhatsAppВаши преимущества при заказе дома в Голден Лог:
- Высочайшее качество по адекватным ценам!
Для производства бревен и клееного бруса используется только северный лес высшего качества, исключительно из Архангельской области, обработанный на собственном производстве на границе Архангельской и Кировской областей. - Значительная экономия вашего бюджета!
Все проекты оптимизированы под производство, отходов практически нет. - Чистота и порядок на вашем участке.
Наши рабочие работают на постоянной основе, а на строительных объектах у нас действует "сухой закон". - Скидки и акции в Голден Лог - реальные.
Мы не закладываем скидки в изначальную цену. - Максимальная честность и прозрачность.
Понятные сметы, которые не растут в процессе стройки, нет «подводных камней» - Скидки на отделочные и строительные материалы.
Мы являемся дилерами всей продукции, которую мы используем (кроме того, что производим сами), работаем только с надежными партнерами. - Вы не платите за раздутый штат непроизводственного персонала и аренду огромных офисов.
У нас нет большого штата менеджеров, представителей, консультантов, продавцов – Вы общаетесь сразу с профессионалами. - Актуальные, рыночные цены.
Мы регулярно изучаем предложения на рынке и предлагаем лучшую цену. - Возможно, лучшее соотношение цена/качество на строительном рынке Москвы и Московской области.
У нас огромный опыт в строительстве и мы знаем, как не тратить лишних денег Заказчика. - Гарантия на все виды работ.
Работаем только по договору и даем официальную гарантию на наши работы и материалы в соответствии с законодательством РФ.